Sửa chữa, cải tạo nhà Bình Dương
- 1. Công Ty Sửa Chữa - Cải Tạo Nhà Bình Dương
- 2. Yêu Cầu Sữa Chữa - Cải Tạo Nhà Bình Dương
- Mặt bằng cải tạo nhà Bình Dương
- Mặt cắt công trình cải tạo nhà Bình Dương
- Kéo vật liệu bằng dòng dọc tại công trình cải tạo nhà
- 3. Giải Pháp Sữa Chữa Cải Tạo Nhà Bình Dương
- 4. Quy Trình Thi Công Sữa Chữa Cải Tạo Nhà Bình Dương
- Đập bỏ cột cũ công trình cải tạo Bình Dương
- Gia công thép công trình cải tạo nhà
- Làm xong ván khuôn cột công trình cải tạo nhà
- Lắp đặt ván khuôn cột công trình cải tạo nhà
- Vị trí giao nhau cột cũ và cột mới
- Xây tường mới lên tường cũ
- Lắp đặt xong ván khuôn dầm công trình cải tạo nhà
- Mời các bạn xem 1 số mẫu biệt thự 1 trệt 1 lầu
1. Công Ty Sửa Chữa - Cải Tạo Nhà Bình Dương
Trên địa bàn tỉnh Bình Dương có rất nhiều công ty thi công sửa chữa nhà. Nhưng để chủ nhà chọn ra 1 công ty hay 1 nhà thầu thi công giỏi - đúng tiến độ và chi phí hợp lý là rất khó.
Nay chúng tôi sẽ giới thiệu cho bạn Công Ty Mạnh Toàn Thắng là 1 công ty chuyên thiết kế - Thi công và sữa chữa - cải tạo nhà uy tín nhất tại Bình Dương. Với nhiều năm trong nghề xây dựng, Mạnh Toàn Thắng nắm rõ được từng giai đoạn nào cần chú ý, am hiểu được tất cả các vật tư tốt bền nhất trên thị trường. Ngoài ra, Mạnh Toàn Thắng sẽ đưa ra 1 mức giá hợp lý, phù hợp với chủ nhà.
Mặt tiền công trình cải tạo nhà
Mặt hông công trình cải tạo nhà
2. Yêu Cầu Sữa Chữa - Cải Tạo Nhà Bình Dương
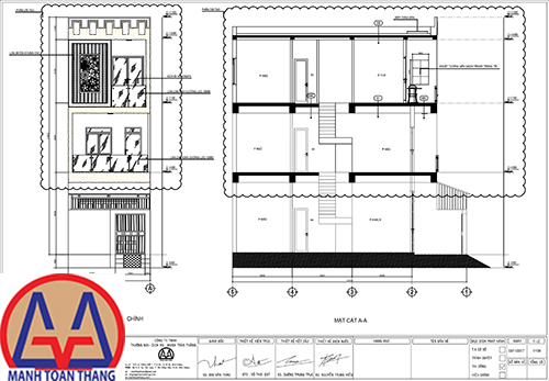
Yêu cầu của công trình Sửa chữa, cải tạo nhà Bình Dương này là xây thêm 1 lầu ở trên, để có thêm 1 phòng ngủ với khu vệ sinh nhằm đáp ứng nhu cầu cấp bách của chủ nhà.
Mặt bằng cải tạo nhà Bình Dương
Mặt cắt công trình cải tạo nhà Bình Dương
Vì căn nhà này nằm ở giữa 2 căn nhà kế bên nên việc thi công gặp nhiều khó khăn, khi đưa vật liệu xây dựng lên trên phải đảm bảo không làm ảnh hưởng đến công trình cũ.
Kéo vật liệu bằng dòng dọc tại công trình cải tạo nhà
3. Giải Pháp Sữa Chữa Cải Tạo Nhà Bình Dương
Và giải pháp được chúng tôi đưa ra nhằm Sửa chữa, cải tạo nhà Bình Dương đảm bảo yêu cầu đó là dùng dòng dọc với sức kéo bằng máy. Thời gian thi công sẽ nhanh hơn mà vẫn đảm bảo yêu cầu của chủ nhà.
Che chắn vật liệu không làm ảnh hưởng nhà hàng xóm
4. Quy Trình Thi Công Sữa Chữa Cải Tạo Nhà Bình Dương
Tại vị trí bên hông công trình, nơi tiếp xúc với nhà của hàng xóm, thì yêu cầu đặt ra là không làm rơi hay rớt vật liệu xuống mái nhà hàng xóm, để giải quyết vấn đề này thì Cty Mạnh Toàn Thắng dùng lưới để che chắn không cho vật liệu rớt xuống.
Đập bỏ cột cũ công trình cải tạo Bình Dương
Trước khi thi công thì chúng tôi phải đập bỏ cột cũ, làm sao cho lộ ra lớp thép chờ cũ, rùi tiến hành rửa sạch để khi đổ bê tông mới sẽ có độ kết dính cao.
Gia công thép công trình cải tạo nhà
Tiến hành làm gia công thép cột, chi tiết phải phù hợp với bản vẽ chi tiết cột, vì là lầu trân cùng nên dùng thép đai phi 6, với khoảng cách các đai đúng tiêu chuẩn.
Làm xong ván khuôn cột công trình cải tạo nhà
Dựa trên bản vẽ kích thước cột ta tiến hành tạo ván khuôn cột, ván khuôn được dùng dày 20mm
Lắp đặt ván khuôn cột công trình cải tạo nhà
Sau khi đã gia công thép cột xong thì tiến hành ghép vào thép chờ của cột, buộc chắc.
Tiếp theo ta ghép ván khuôn cột vào khung sắt cột làm sao cho khoảng cách bảo vệ lớp cốt thép tốt nhất và trong hộp ván khuôn gỗ cột có khoảng cách giữa các đoạn thép liên kết với tường đạt tiêu chuẩn, thường là 450mm.
Sau khi đã kiểm tra và ghép xong ván khuôn cột đạt yêu cầu thì tiến hành đổ bê tông cột.
Vị trí giao nhau cột cũ và cột mới
Sau một khoảng thời gian bê tông cột đạt yêu cầu thì tiến hành tháo ván khuôn cột và tiến hành xây tường và lắp đặt ván khuôn - khung thép của dầm.
Xây tường mới lên tường cũ
Lắp đặt xong ván khuôn dầm công trình cải tạo nhà
Việc cải tạo nhà cũ được Cty Mạnh Toàn Thắng chúng tôi thi công rất nhiều và luôn nhận được phản hồi tốt của khách hàng về chất lượng và uy tín.
Bạn muốn tham khảo thêm thì ghé vào đường link này nhé:
Mời các bạn xem 1 số mẫu biệt thự 1 trệt 1 lầu
Gọi ngay để được tư vấn dịch vụ miễn phí...
Hotline: 0387.475.134 Ks. Trực













Xem thêm