Quy Trình Xin Giấy Phép Xây Dựng Phường An Phú - Nhanh Chóng - Trọn Gói
Bài viết này cung cấp thông tin chi tiết về quy trình xin giấy phép xây dựng tại phường An Phú, bao gồm các bước cần thực hiện, thành phần hồ sơ cần chuẩn bị. Để quá trình xin giấy phép diễn ra xuôn sẻ nhanh chóng.
Phường An Phú được thành lập trên cơ sở: Sáp nhập phường An Phú và các khu phố Bình Phước A, Bình Phước B thuộc phường Bình Chuẩn. Trụ sở ở phường An Phú.
Tại sao cần xin giấy phép xây dựng ở Phường An Phú trước khi thi công?
• Đảm bảo tính hợp pháp của công trình: Tránh các rủi ro pháp lý, bị đình chỉ thi công hoặc thậm chí bị cưỡng chế tháo dỡ.
• Đảm bảo an toàn cho công trình: Quy trình cấp phép sẽ kiểm tra các yếu tố kỹ thuật, đảm bảo công trình được xây dựng theo đúng tiêu chuẩn.
• Thuận lợi trong các giao dịch sau này: Giấy phép xây dựng là một trong những giấy tờ quan trọng khi bạn thực hiện các giao dịch liên quan đến bất động sản, hoàn công.
Giấy Phép xây dựng phường An Phú
Quy trình xin giấy phép xây dựng tại phường An Phú
1.Chuẩn bị hồ sơ đầy đủ
- Trước tiên, bạn cần chuẩn bị một bộ hồ sơ đầy đủ theo yêu cầu của cơ quan chức năng.
- Hồ sơ bao gồm đơn xin cấp phép xây dựng, sổ đỏ công chứng, bản vẽ thiết kế, đơn cam kết an toàn công trình liền kề và các giấy tờ liên quan.
2. Nộp hồ sơ
Nộp hồ sơ tại bộ phận tiếp nhận của Ủy ban Nhân dân phường An Phú. Tại đây,bộ phận tiếp nhận sẽ kiểm tra tính hợp lệ của hồ sơ.
3. Thẩm định hồ sơ
Cơ quan chức năng sẽ tiến hành thẩm định hồ sơ và xuống kiểm tra hiện trạng khu đất. Trong quá trình này có thể phải chỉnh sửa bổ sung hồ sơ.
4. Nhận kết quả
- Nếu hồ sơ đạt yêu cầu cơ quan chức năng sẽ cấp giấy phép xây dựng.
- Nhận giấy phép xây dựng ở bộ phận một cửa, hay qua đường bưu điện.
Bộ phận tiếp nhận hồ sơ xin giấy phép xây dựng
Hồ sơ xin giấy phép xây dựng ở Phường An Phú bao gồm:
- Đơn xin cấp giấy phép xây dựng. (Theo mẫu mới nhất).
- Đơn cam kết đảm bảo an toàn công trình liền kề trong quá trình thi công.
- Bản vẽ thiết kế xây dựng: (2 bộ)
+ Bản vẽ phải do công ty có chức năng thiết kế lập.
+ Bản kê khai kinh nghiệm của tổ chức thiết kế kèm theo chứng chỉ hành nghề của kiến trúc sư, kĩ sư.
- Giấy tờ chứng minh quyền sử dụng đất (sao y công chứng 1 bản), kèm theo trích lục nếu có.
- Căn cước công dân (photo 1 bản)
Lưu ý rằng tất cả các tài liệu đều phải được ký tên và đóng dấu hợp lệ trước khi nộp để tránh những sai sót không đáng có trong quá trình xét duyệt.
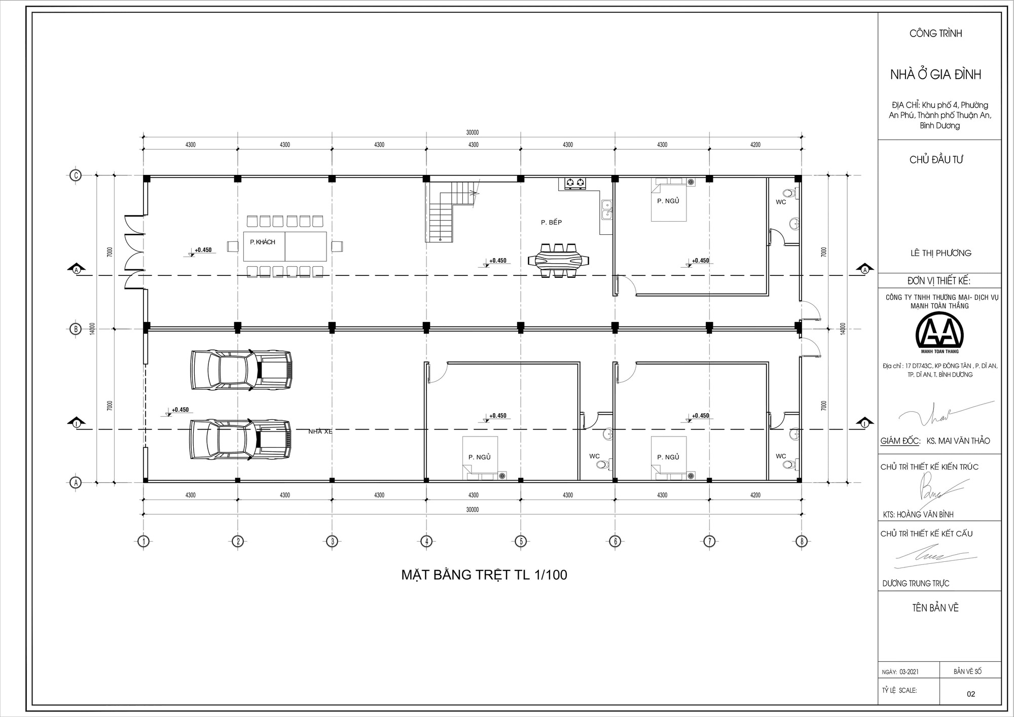
Bản vẽ xin giấy phép xây dựng phường An Phú
Dịch vụ xin giấy phép xây dựng trọn gói của công ty chúng tôi.
• Tư vấn miễn phí cho chủ nhà về quy chế xây dựng, mật độ xây dựng, khoảng lùi, quy mô số tầng…
• Chuẩn bị đầy đủ hồ sơ: chủ nhà chỉ việc cung cấp sổ đỏ sao y công chứng, CCCD photo, và kí hồ sơ.
• Nộp và theo dõi tiến độ hồ sơ thay cho khách hàng.
• Bàn giao giấy phép xây dựng tận tay khách hàng: Đảm bảo khách hàng nhận được giấy phép xây dựng một cách nhanh chóng.
Bảng Giá Xin Giấy Phép Xây Dựng Phường An Phú
Xem Thêm: Xin Giấy Phép Xây Dựng Bình Dương
Gọi ngay để được tư vấn dịch vụ miễn phí...
Hotline: 0387.475.134 Ks. Trực




Xem thêm