Bản vẽ cấp phép xây dựng Dĩ An
1. Bản vẽ cấp phép xây dựng Dĩ An là gì?
Bản vẽ cấp phép xây dựng Thành Phố Dĩ An là một phần rất quan trọng trong bộ hồ sơ xin phép xây dựng, phải do công ty có chức năng thiết kế cùng với các KTS, KS phải có chứng chỉ hành nghề thiết kế kiến trúc , thiết kế xây dựng kết cấu, điện nươc.
Bản vẽ cấp phép xây dựng Thành Phố Dĩ An cũng là thiết kế bản vẽ thi công trong thành phố Dĩ An, cho nên đòi hỏi bản vẽ thiết kế phải đầy đủ và rõ ràng từng chi tiết của căn nhà.
2: Bản vẽ cấp phép xây dựng Dĩ An gồm có:
- Sơ đồ vị trí tỷ lệ 1/200
- Mặt bằng các tầng, mặt đứng chính, mặt cắt tỷ lệ 1/100.
- Mặt bằng đấu nối điện cấp nước sinh hoạt 1/100.
- Mặt bằng thoát nước mặt – thoát nước thải sinh hoạt 1/100.
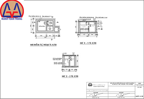
- Bản vẽ thiết kế hầm cầu 1/100.
- Mặt bằng móng, đà kiềng và mặt cắt móng 1/100.
Sơ đồ vị trí
Mặt bằng các tầng
Mặt cắt nhà
Mặt bằng hầm tự hoại
3. Chi phí bản vẽ cấp phép xây dựng ở Dĩ An
(kèm theo công ty sẽ làm hồ sơ và hướng dẫn bạn đi nộp hồ sơ)
- Bản vẽ nhà cấp 4: 800.000vnđ
- Bản vẽ nhà 1 trệt 1 lầu: 1.000.000vnđ
- Bản vẽ nhà 1 trệt 2 lầu trở lên: 3.000.000vnđ
- Bản vẽ nhà trọ dưới 8 phòng: 1.500.000vnđ
- Bản vẽ nhà trọ trên 8 phòng: 3.000.000vnđ
Bản vẽ cấp phép xây dựng Dĩ An
Bản Vẽ Xin Cấp Giấy Phép Xây Dựng Bình Dương Bao Gồm Chi Tiết Gì?
Cấp Phép Xây Dựng Nhà Ở Thành Phố Dĩ An Có Gì Thay Đổi?
Hướng Dẫn Chủ Nhà Xin Giấy Phép Xây Dựng
---------------------------------------
Hướng dẫn xin giấy phép xây dựng nhà ở tại Bình Dương mới nhất
---------------------------------------
Gọi ngay để được tư vấn dịch vụ miễn phí...
Hotline: 0387.475.134 Ks. Trực





Xem thêm