Hồ sơ bản vẽ xin phép xây dựng Thuận An
- 1. Tại sao lại cần bản vẽ xin phép xây dựng Thuận An
- 2. Hồ sơ bản vẽ xin phép xây dựng Thuận An gồm có:
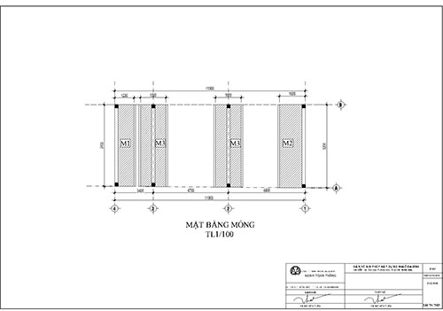
- Hồ sơ bản vẽ xin phép xây dựng Thuận An, mặt bằng móng
- Hồ sơ bản vẽ xin phép xây dựng Thuận An, mặt bằng trệt
- Hồ sơ bản vẽ xin phép xây dựng Thuận An, mặt bằng lầu 1
- Hồ sơ bản vẽ xin phép xây dựng Thuận An, mặt bằng gác lửng
- Hồ sơ bản vẽ xin phép xây dựng Thuận An, mặt đứng
- Hồ sơ bản vẽ xin phép xây dựng Thuận An, chi tiết móng
1. Tại sao lại cần bản vẽ xin phép xây dựng Thuận An
Bản vẽ xin phép xây dựng Thuận An là một thành phần rất quan trọng và không thể thiếu trong bộ hồ sơ xin phép xây dựng, vì là thành phần quan trọng nên nếu không đầy đủ hoặc không có bản vẽ thì bạn sẽ không được cấp phép xây dựng.
2. Hồ sơ bản vẽ xin phép xây dựng Thuận An gồm có:
a / Bản vẽ mặt bằng vị trí công trình xây dựng trên lô đất, mặt bằng ranh giới lô đất, sơ đồ đấu nối với hạ tầng kĩ thuật ngoài hàng rào của công trình (giao thông, điện, nước).
b/ Bản vẽ các mặt bằng, mặt đứng mặt cắt chủ yếu của công trình.
c / Bản vẽ các mặt bằng móng, mặt bằng cắt móng, các bản vẽ kết cấu, chịu lực chính (Móng, khung tường, mái chịu lực.).
d/ Bản vẽ PCCC đã được thẩm duyệt đối với công trình thuộc dạng phải thẩm duyệt PCCC theo pháp luật. ( tùy theo từng công trình bắt buộc)
e/ Đối với công trình sửa chữa cải tạo cần phải có bản vẽ vị trí hạng mục cần cải tạo, nếu có ảnh hưởng đến kết cấu thì phải có kết quả báo cáo khảo sát, đánh giá chất lượng kết cấu liên quan đến hạng mục cải tạo, sửa chữa và các biện pháp gia cố đủ điều kiện sửa chữa cải tạo, kèm theo ảnh chụp hiện trạng công trình cần cải tạo, sửa chữa và công trình lân cận.
f/ Đối với trường hợp lắp đặt thiết bị, kết cấu khác vào công trình đã xấy dựng nhưng không thuộc sở hữu của chủ đầu tư thì phải có bản sao có chứng thực hợp đồng với chủ sở hữu công trình.
Hồ sơ bản vẽ xin phép xây dựng Thuận An, mặt bằng móng
Hồ sơ bản vẽ xin phép xây dựng Thuận An, mặt bằng trệt
Hồ sơ bản vẽ xin phép xây dựng Thuận An, mặt bằng lầu 1
Hồ sơ bản vẽ xin phép xây dựng Thuận An, mặt bằng gác lửng
Hồ sơ bản vẽ xin phép xây dựng Thuận An, mặt đứng
Hồ sơ bản vẽ xin phép xây dựng Thuận An, chi tiết móng
Lưu ý: với công trình > 250 M2 thì sẽ thêm bản vẽ kết cấu, đóng dóng công ty thiết kế.
Nếu bạn không am hiểu về bản vẽ xin phép xây dựng mà muốn có bộ Hồ sơ bản vẽ xin phép xây dựng Thuận An đúng tiêu chuẩn thì bạn nên thuê công ty xây dựng làm thay cho bạn.
Những công ty xây dựng chuyên nghiệp có nhiều kinh nghiệm tại khu vực Bình Dương rất ít, nhưng nổi bật trong số các công ty uy tín – giàu kinh nghiệm là Công Ty Mạnh Toàn Thắng.
Phương châm kinh doanh của Cty Mạnh Toàn Thắng là có giấy phép xây dựng mới nhận tiền của khách hàng.
ViDeo: Hồ Sơ Xin Cấp Phép Xây Dựng Bao Gồm Những Gì?
ViDeo: Xin Giấy Phép Xây Dựng Thành Phố Thuận An Mới Nhất
ViDeo: Bản Vẽ Xin Cấp Phép Xây Dựng Bình Dương Bao Gồm Chi Tiết Gì?
ViDeo: Cách Viết Đơn Để Nghị Cấp Giấy Phép Xây Dựng Bình Dương
Hướng dẫn xin giấy phép xây dựng nhà ở tại Bình Dương mới nhất
---------------------------------------
Gọi ngay để được tư vấn dịch vụ miễn phí...
Hotline: 0387.475.134 Ks. Trực






Xem thêm