Hồ sơ đề nghị cấp giấy phép xây dựng đối với nhà ở riêng lẻ
Hồ Sơ Xin Cấp Phép Xây Dựng Bao Gồm Những Gì?
1. Hồ sơ đề nghị cấp giấy phép xây dựng đối với nhà ở riêng lẻ tại đô thị:
a) Đơn đề nghị cấp giấy phép xây dựng, theo mẫu tại Phụ lục số 13 của Thông tư này; download
b) Bản sao được công chứng hoặc chứng thực một trong những giấy tờ về quyền sử dụng đất theo quy định của pháp luật về đất đai;
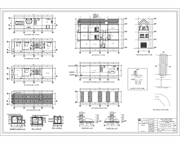
c) Hai bộ bản vẽ thiết kế, mỗi bộ gồm:
- Bản vẽ mặt bằng công trình trên lô đất tỷ lệ 1/50 - 1/500, kèm theo sơ đồ vị trí công trình;
- Bản vẽ mặt bằng các tầng, các mặt đứng và mặt cắt chủ yếu của công trình, tỷ lệ 1/50 - 1/200;
- Bản vẽ mặt bằng móng tỷ lệ 1/50 - 1/200 và mặt cắt móng tỷ lệ 1/50, kèm theo sơ đồ đấu nối hệ thống thoát nước mưa, xử lý nước thải, cấp nước, cấp điện, thông tin tỷ lệ 1/50 - 1/200.
d) Hồ sơ đơn vị thiết kế bản vẽ cấp phép
- Chứng chỉn năng lực hoạt động xây dựng công chứng công ty.
- Chứng chỉ hành nghề của kỹ sư, kiến trúc sư, kỹ sư điện, nước. 01 bản công chứng
- Giây đăng ký kinh doanh công ty.
Bản vẽ cấp phép xây dựng
2. Hồ sơ đề nghị cấp giấy phép xây dựng đối với nhà ở riêng lẻ tại nông thôn:
a) Đơn đề nghị cấp giấy phép xây dựng, theo mẫu tại Phụ lục số 14 của Thông tư này; download >>tại đây<<
b) Bản sao được công chứng hoặc chứng thực một trong những giấy tờ về quyền sử dụng đất theo quy định của pháp luật về đất đai;
c) Hai bộ bản vẽ thiết kế, mỗi bộ gồm:
- Sơ đồ mặt bằng xây dựng tỷ lệ 1/50 - 1/500, theo mẫu tại Phụ lục số 15 của Thông tư này;
- Bản vẽ các mặt đứng chính của công trình, tỷ lệ 1/50 - 1/200;
- Bản vẽ sơ đồ đấu nối hệ thống thoát nước mưa, nước thải, cấp nước, cấp điện, thông tin, tỷ lệ 1/50 - 1/200.
3. Đối với công trình xây chen có tầng hầm, ngoài các tài liệu quy định tại khoản 1, khoản 2 Điều này, hồ sơ còn phải bổ sung văn bản phê duyệt biện pháp thi công móng và tầng hầm của chủ đầu tư đảm bảo an toàn cho công trình và công trình lân cận.
Hướng Dẫn Chủ Nhà Xin Giấy Phép Xây Dựng
Bản Vẽ Xin Cấp Giấy Phép Xây Dựng Bình Dương Bao Gồm Chi Tiết Gì?
Cách viết Đơn đề nghị cấp giấy phép xây dựng Bình Dương
---------------------------------------
Hướng dẫn xin giấy phép xây dựng nhà ở tại Bình Dương mới nhất
---------------------------------------
Gọi ngay để được tư vấn dịch vụ miễn phí...
Hotline: 0387.475.134 Ks. Trực

Xem thêm